• Foyer d’Accueil Médicalisé, Draveil

Le site proposé pour le foyer d’accueil médicalisé s’inscrit dans l’évolution de l’hôpital Joffre, en lisière de forêt de Sénart. Ce contexte conditionne le rapport que doit entretenir le projet avec la ville et son environnement. Il s’agit nécessairement ici de réussir à « dialoguer » avec la nature environnante, fortement présente et quand cela est possible, de préserver un lien direct avec le voisinage ainsi qu’une certaine quiétude des futurs résidents et utilisateurs lorsque cela est nécessaire.

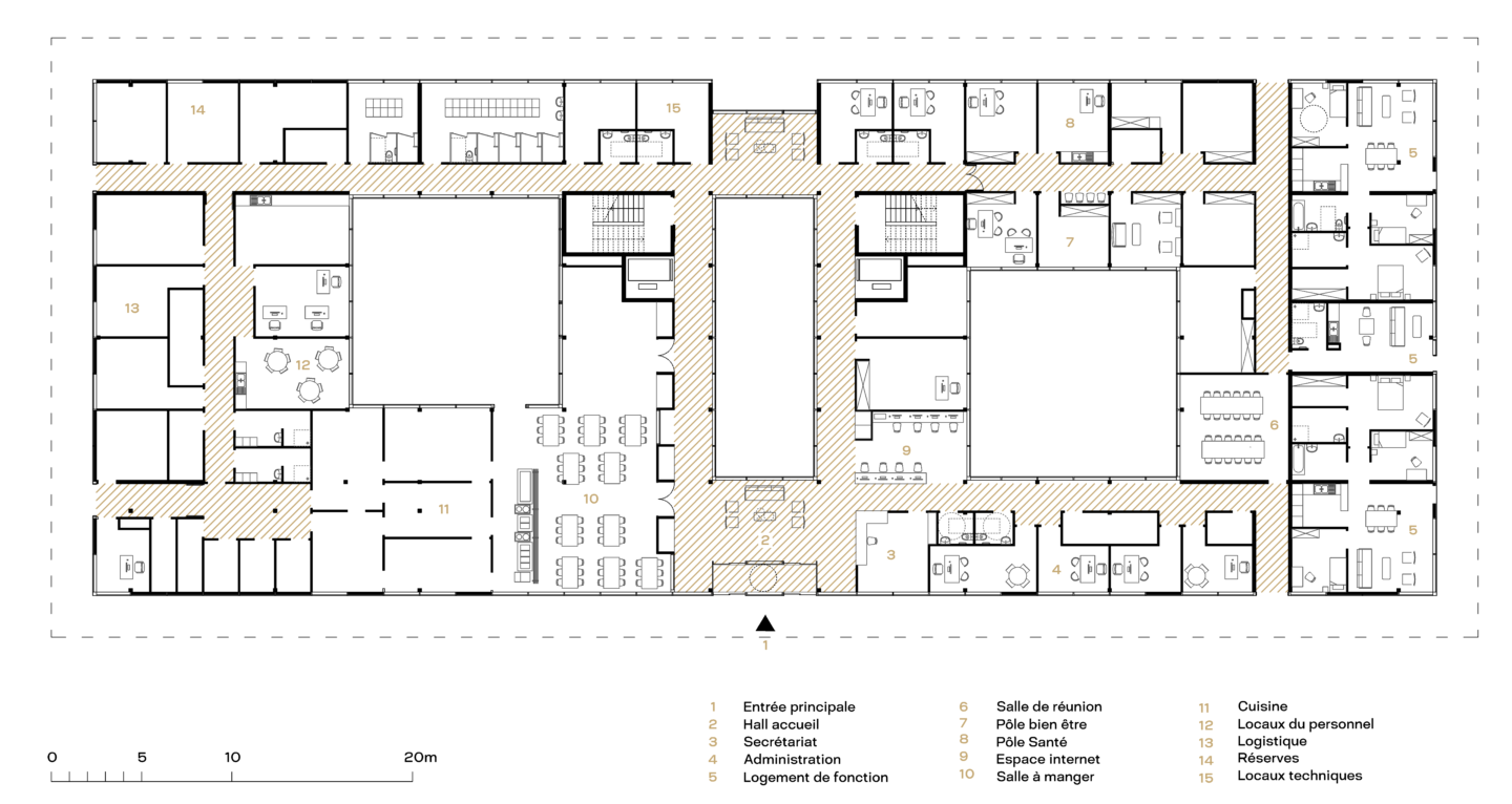
Nous avons imaginé et conçu ce projet comme une grande maison. Cette notion du foyer est à nos yeux importante pour les résidents. Il doivent pouvoir participer à la vie communautaire mais aussi pouvoir s’isoler dans leur propre chez eux. Le concept d’un espace inclus dans un autre espace s’est ainsi révélé comme le plus pertinent. Les résidents ont chacun leur propre espace intime, la chambre. Celle-ci est incluse dans un espace commun général qui forme une unité de vie et le groupement d’unité de vie est lui-même inclus dans un ensemble global qui est le foyer d’accueil médicalisé. Le projet pourrait donc s’apparenté à ces poupées russes: plus nous soulevons de poupée, plus nous entrons dans une sphère intime du projet.

Le dessin de l’établissement s’est fait de façon naturelle, d’abord par les usages. Ainsi, le projet est entièrement lisible depuis l’extérieur ; deux maisons en brique sont posées sur un socle en verre. Cela confère une réelle assise aux deux blocs des unités de vie et permet de les distinguer comme si l’une était la voisine de l’autre et vis vers ça.

Maîtrise d’ouvrage
Institut le Val Mandé
Chef de Projet
Fabien Bargue et Kelly Pelletier
Cotraitant
CETAB
Programme
Construction d'un Foyer d'Accueil Médicalisé pour personnes handicapées vieillissantes
Coût
6,2 M€HT
Surface
2 568 m²
Mission
Complète – Livraison 2022
Photos
Charly Broyez