• 97 logements collectifs, Merignac

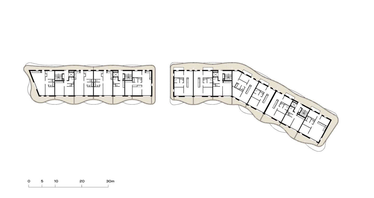
Dans un territoire périurbain, entre le centre ville de Mérignac et la rocade, notre projet de logements collectifs aux Ardillos s’intègre dans un site en mutation. Il s’élabore comme un bâtiment compact. Cette compacité répond à des objectifs techniques pour limiter les déperditions mais aussi à des enjeux de rationalité. Tous les logements se développent dans de grands parallélépipèdes.

L’enveloppe extérieure du projet se compose de manière unitaire.  Elle renforce la lecture d’un même volume recueillant les unités de vie. La vêture est en bardage métallique ondulé de teinte sombre. Les occultations et châssis ont la même apparence de façon à homogénéiser l’aspect « monolithique » des logements. Les balcons et coursives se détachent par contraste de matérialité. En effet, les oscillations, engendrées par les multiples décalages selon les niveaux, se traitent de manière plus minérale, comme un ruban façonné. Nous employons un béton blanc pour la réalisation de ces éléments. Ils constituent les garde-corps périphériques des balcons et des coursives extérieures.

L’écriture architecturale repose ainsi sur cette dichotomie de couleurs et matérialités. Très clair et très simple, elle met en valeur des éléments communs à tous les bâtiments. Elle s’inscrit également dans la pluralité des projets composant ce site.

Chaque logement bénéficie d’un prolongement sur l’extérieur par l’intégration d’un balcon généreux en s’ouvrant sur un grand parc. Ces balcons serpentent tout au long de la façade, offrant une surface importante au niveau des pièces principales de chaque logement et diminuent devant les pièces de nuit. D’un niveau à l’autre, ces ondulations se décalent, animant ainsi la composition d’ensemble et dégagent des vues vers le ciel tout en laissant pénétrer la lumière dans chaque unité de vie.

Maîtrise d’ouvrage
MESOLIA - AQPRIM
Chef de Projet
Rita CSASZAR - Julien BLONDY
Cotraitant
CETAB
Programme
Construction de 97 logements collectifs
Coût
8,2 M€HT
Surface
6 989 m²
Caractéristiques
BBC Effinergie
Mission
Complète – Livraison 2022
Photos
Ivan Mathie