• Demi-pension du collège La Rochefoucauld, Liancourt

La reconstruction de la demi-pension du collège La Rochefoucauld de Liancourt pose deux problématiques. Celle du gestionnaire, c’est d’abord la préparation de repas. Mais aussi l’organisation du service et la gestion de flux important dans un temps contracté. Celle des élèves et des professeurs : disposer d’un maximum de confort et de quiétude. Il s’agit du préambule nécessaire afin de bénéficier d’une véritable coupure dans l’emploi du temps de la journée.

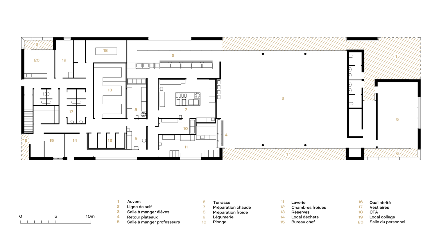
L’architecture que nous avons mis en place répond à ces deux problématiques en alliant forme et fonction. Un auvent se dégage sous un monolithe compact permettant l’accueil des élèves. Les fonctions usuelles s’enchaînent de manière naturelle. Les séquences permettent de gérer et de contenir le flux continu des élèves depuis l’entrée jusque la sortie en évitant ainsi les problèmes d’attente propices aux bousculades.

La salle de restauration largement vitrée, est à la fois orientée vers les espaces sportifs tout en offrant un cadrage bucolique sur les arbres le long de la rue Louis Lumière. Ce volume traversant propose une ouverture zénithale baignant l’espace dans une douce lumière apaisante. Lieu protégé, il permet aux élèves de partager un moment différent de la journée tourné vers le calme et la nature. La salle des professeurs, orientée elle aussi vers l’espace boisé possède quant à elle une terrasse indépendante. A l’écart, cette salle permet de décompresser et d’offrir au personnel d’encadrement et aux enseignants un déjeuner dans une ambiance apaisante et conviviale.

Le bardage extérieur est constitué de panneaux d’aluminium naturel perforés. Cette peau très résistante aux chocs permet de redonner au volume une lecture plus légère.

Maîtrise d’ouvrage
Conseil Général de l'Oise
Cotraitant
BETCI
Programme
Construction de la demi-pension du collège La Rochefoucauld à Liancourt
Coût
2,1 M€HT
Surface
900 m²
Mission
Complète – livraison 2009
Photos
Stéphane Chalmeau
Distinctions
Projet nominé au prix de la première œuvre 2009
AMC - 100 bâtiments de l'année 2009